Opdrachtgever Florin Ontwikkeling
In samenwerking met KRAFT architecten
Jaar van ontwerp 2020
Jaar van realisatie 2022/2023
Oppervlakte 2200 m²
Gerealiseerd in realisatie
Project

Florin Velp

Aan de parkstraat in Velp wordt de appartementenvilla Villa Florin ontwikkeld. Le Far West maakte het ontwerp voor de tuin en buitenruimte bij de door KRAFT architecten ontworpen villa met bergingen, parkeerschuur en tuinkamer. De buitenruimte wordt grotendeels ingericht als gemeenschappelijke tuin met belevingswaarde door de seizoenen heen en aandacht voor detail: een ontspannen versie van de formele tuin als tegenhanger van de klassieke, robuuste architectuur.

Parkstraat Velp 1920-1940
Parkstraat Velp 1920-1940

Opgave

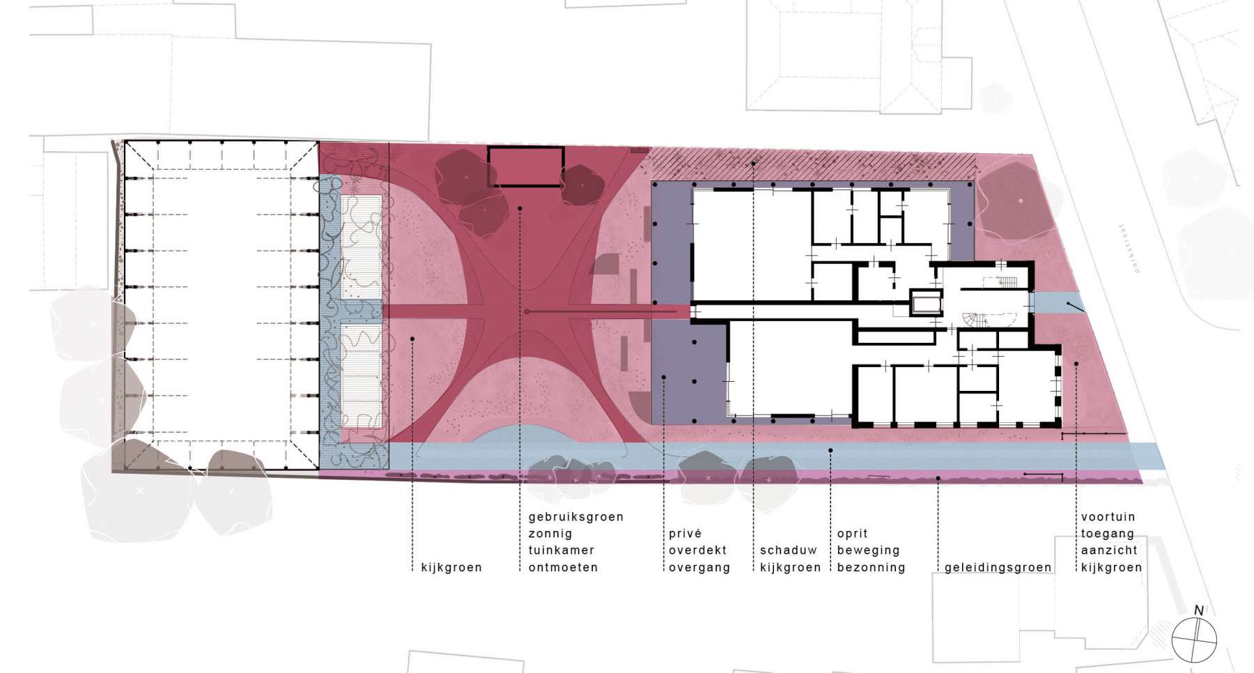
De villa staat aan de straatzijde van de kavel. Via een oprijlaan bereikt men aan de achterzijde van de kavel de parkeerschuur voor auto’s en fietsen. Het tussengelegen terrein bestaat uit de gezamenlijke tuin met de buitenbergingen van de woningen en een gezamenlijke tuinkamer.

De ambitie is een buitenruimte te creëren met hoge kwaliteit en aandacht voor detail. De beleving van de tuin is zowel vanaf de balkons als in de tuin zelf, door de seizoenen heen interessant. De tuin biedt, wat het balkon niet kan bieden. Speciale aandacht gaat uit naar het gezamenlijke gebruik van de tuin. Er zal ruimte geboden worden om op jezelf te zijn of juist gezelschap op te zoeken. Ook biedt de tuin een goede scheiding tussen privé en gezamenlijk gebruik. Er is ontworpen met oog voor duurzaamheidsaspecten als klimaatadaptatie, biodiversiteit en duurzame materialen.

ontwerp
ontwerp

Ontwerp

Het ontwerp voor de villa sluit in vormgeving aan op de historische villa’s in de omgeving, gegoten in een moderne jas. De tuin is hierbij passend: versterkende contrasten in een ontspannen versie van de formele tuin. De architectuur heeft een klassiek, robuust uiterlijk waarbij de tuin de magische tegenhanger is. De tuin biedt ontspanning in de statigheid van het gebouw. Het heeft allure maar is ook praktisch in gebruik, geeft intimiteit door een omsloten gevoel maar is niet afgesloten van zijn omgeving. De beplanting heeft zachte vormen met duidelijke structuren en is visueel aantrekkelijk, met elk seizoen haar eigen magie.

De tuin bestaat uit kijkgroen, gebruiksgroen en geleidingsgroen. De gebogen vormen van de paden zijn goed begaanbaar en toch zacht in beeld. Tijdens warme zomers biedt de tuin verkoeling door verschillende plekken in de schaduw, veel groen en de aanwezigheid van water. In het vroege voorjaar of late herfst is er genoeg plek om in de zon te zitten. En in de winter kan er gebruikt gemaakt worden van de tuinkamer. ­Elk seizoen biedt de tuin een plek om te verblijven.

verschillende functies van 'groen'
gebruiksruimtes in de tuin
uitzicht vanuit de schuur op de villa
uitzicht vanuit de schuur op de villa
uitzicht vanuit het tuinhuis op de tuin
uitzicht vanuit het tuinhuis op de tuin
zijaanzicht appartementen begane grond
zijaanzicht appartementen begane grond

Beplanting

De beplanting is weelderig zonder wild te zijn. Gul en vrolijk. Ieder seizoen heeft haar eigen magie. 

beplantingslijst met bloeikleur
beplantingskalender met bloeikleur

Planning

Villa en tuin worden volgens de planning opgeleverd in 2023.